首页 装修流程 装修设计 台湾姑娘住50㎡单身公寓 暗卫改造装修巧借光

台湾姑娘住50㎡单身公寓 暗卫改造装修巧借光

2020-08-30 13:26:05 作者:Haley

  这是一个台湾姑娘的单身公寓,位于淡水,格局小巧,却通透又舒适,还有巧妙的暗卫改善方案,值得借鉴哦!

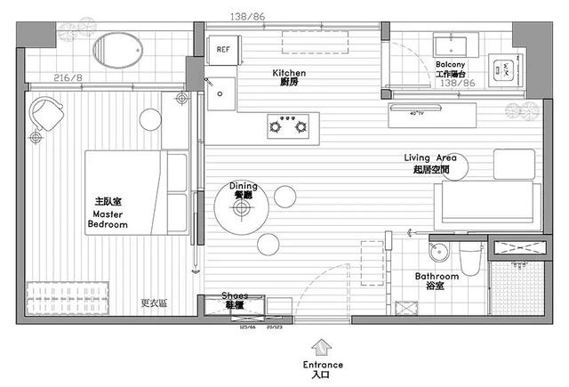
  面积:15坪(约50㎡)

  户型:一室一厅

  风格:北欧+复古

  这套公寓的户型很方正,南向有一大排窗子,采光条件良好,唯一的缺憾是卫浴间无窗,是暗卫。因此,设计师在其中加入了木窗造景、玻璃砖等因素,增加室内的通透感和明亮度,同时也优化了通风条件,让这个副热带季风气候中的小宅更加宜居。

  进门右手边是小小的玄关区,放了一个带小柜子的换鞋凳,舒适的皮质凳面,细细的四条凳腿显得小巧雅致,上面放的是二手市场淘回来的古董电话。

  换鞋凳后面的玻璃砖墙里面就是卫浴间,用玻璃砖+木窗代替墙面,引入光线的同时,也增加了室内的通透感,有利于卫浴间的通风干燥。

  与卫浴间一墙之隔是起居室,空间比较小,舍弃了笨重的沙发,选用复古沙发椅,两只造型独特的小凳子作为边几,白色钓鱼灯代替主灯,挂毯和手工地毯都是旅行纪念品。

  从起居室看向玄关区,卫浴间装的是木质移门,透过玻璃砖可以看到入户门的轮廓。进门左侧装了一个底部悬空的大柜子,主要用来收纳鞋子和杂物,底下的空间则用来放穿过的鞋子。

  起居室正对的是餐厨区,开放式厨房所占的空间与起居室相当,一排窗子提供了充足的采光,不做吊柜则让空间更加通透,地柜的收纳能满足一人居的需求,一些体积较大的容器则安置在夫洛亚推车上。

  餐区的桌椅是二手欧洲家具,独特的造型是屋主喜欢的复古风,金属质感的三头吊灯与挂钟形成呼应,用西班牙进口手工砖组成的跳色墙面方便清理,也暗暗呼应了起居室的粉蓝墙面。

  卧室用的是隐形移门,拉开后藏于墙面中,床头这面的墙刷成了浅咖色,也暗暗呼应了餐区的瓷砖跳色哦。

  卧室进门左侧的墙面是集中收纳区,搁板、挂杆、脏衣篮、抽屉柜、大衣柜、收纳箱一应俱全。

  曾经看过关于睡前衣物放在哪的讨论,这个搁板+挂杆+衣架的组合想必能作为解答,睡前衣物、穿了一天还不想洗的衣物通通可以挂在这里。

  床铺另一侧,一边是书桌,一边是藤椅和搁板,没有多余的家具,小小的空间也能显得宽敞。

  床头这面墙上也做了木窗造景,优化室内通风,也让空间显得更为通透。窗下还留了窄窄的一段墙面装上木条,作为小小的搁板使用。

  “小户型容易产生压抑感,不建议做太多隔间或分割比较碎,以开放式为规划,重点放在家具上,同时增加采光、通风要素。”

  这个单身公寓通过开放式空间串联客厅、餐厅和厨房,一进门就有通透的视野,可以环视整个空间,每个功能区都能独立又相互融合,充满阳光的厨房区域让做饭更有仪式感。

  利用玻璃砖的通透性,达到光线折射,增加室内明亮度;木窗造景则优化了室内的通风与采光,同时木质的温润感也呼应了屋主喜欢的复古气息;除了玄关的大鞋柜和卧室的衣柜,屋内的家具全部都是小巧玲珑的样式,让空间显得更为宽敞。

  整体配色以木色+白色为主,以粉蓝和浅咖作为跳色,搭配复古家具,营造出温润又怀旧的氛围。

  相关推荐:

  54平日式小窝 文艺男青年的简约单身公寓

  公寓装潢设计的要点 单身公寓需要注意哪些

  氧气美女的专属家居 30平米混搭风小单身公寓

上一篇:布艺沙发清洁与保养的4大误区
下一篇:订立合同的原则都包括哪些 签购房合同的时候要注意什么