首页 装修流程 量房验房 一文道尽家居设计测量"事" 实用助力量好房!

一文道尽家居设计测量"事" 实用助力量好房!

2021-07-22 01:54:35 作者:小许

  在上一期小编给大家带来一份“9012版的收房验房全攻略”,了解一下关于我们收房的点滴。当你收到合格的房子之后,即将进入便是装修的环节。所以今天我们就继续来了解,装修环节的中的测量和设计,这将是我们装修房子跟装修公司或者装修工接触的第一步,有些东西还是需要我们去了解清楚,免得接触到了自己是一种“懵”的状态,那么关于测量设计,又有哪些东西,是值得我们去知晓的呢,下面就一步步,来解剖开,可能文章略长,大家稍微多花点时间阅读!

  量房验房】一文道尽家居设计测量"事" 实用助力量好房!

  为什么要量房

  很多人会纳闷,为什么装修第一步都要量房。我家有户型图啊,为什么还要兴师动众来量房呢?他们到底量的是什么?其实,量房看似小事,却至关重要。

  1.了解房屋直观数据

  通过量房准确地了解房屋内各房间的长、宽、高以及门、窗、空调、暖气等的位置。

  2.了解房屋格局利弊

  通过现场量房,设计师会仔细观察房屋的位置和朝向,以及周围的环境状况。噪音是否过大、空气质量如何、采光如何等,这些都会直接影响后期设计。如果有些房子格局或外部环境不好,就需要设计上来弥补。

  3.方便现场沟通设计方案

  量房时,设计师和业主一般都会到场,如果业主对房屋的设计有一定的想法,在现场测量的时候,就可以和设计师沟通看这些想法是否可以实现,现场交流效果更好。此外,业主如果需要提前订购主材,也最好在现场征询设计师的建议后再做决定。

  4.保证后期房屋装修质量

  只有量房比较精确,才能做出准确的设计,不至于后期施工时,因为尺寸不对而出现差池,到时还需进行设计更改或者项目更改,非常麻烦。一些项目如上下水、暖气、煤气位置如果没有测量或者测量不准确,也有可能导致后期购买的坐便器、水盆等因尺寸不对无法安装而发生退货、换货的麻烦事。

  怎么量房——量房需要提前准备什么

  1.量房前记得携带好房屋图纸

  在量房前记得携带房屋建筑水电图以及建筑结构图、户型图等。

  2.了解所在物业对房屋装修的规定

  量房前还一定要了解房屋所在的小区物业,对房屋装修的具体规定,例如在水电改造方面的具体要求,房屋外立面可否拆改,阳台窗能否封闭等等,以避免不必要的麻烦。

  怎么量房——量房的三种测量思路

  定量测量:主要测量各个厅室内的长、宽、高,计算出每个用途不同的房间的面积。并根据业主喜好与日常生活习惯提出合理化的建议。

  定位测量:在这个环节的测量中,主要标明门、窗、空调孔的位置,窗户需要标量数量。在厨卫的测量中,落水管的位置、孔距、马桶坑位孔距、离墙距离、烟管的位置、煤气管道位置、管下距离、地漏位置都需要做出准确的测量,以便在日后的设计中准确定位。

  高度测量:正常情况下,房屋的高度应当是固定的。但由于各个房屋的建筑、构造不同,也可能会有一定的落差,在设计师进行高度测量中,要仔细查看房间的每个区域的高度是否出现落差,以便在日后的设计图纸中做到准确无误。

  怎么量房——量房的流程

  首先从入户门开始,转一圈测量,最后回到入户门的另一边,一般顺序是从左到右;然后从最靠近入户门的一个房间开始测量,同样从门开始转一圈测量;如果是多层建筑,必须注意测量完一层再到另外一层。

  1、带齐工具

  将设计师带入房屋进行测量的时候,一定会使用到一些测量工具,因此需要住户提前进行准备。量房的工具大致有卷尺、纸、笔、相机。而相机这个可以用手机代替,需要在测量的时候对整体空间有个平面化的了解。

  2、提前画图

  在购买房屋的时候,都会有房屋整体的平面图,如果没有可以向物业索要,这个平面图在量房的时候有很大的用处,而据小编所知,很多住户将其丢弃了。

  我们在量房的时候,可以从进门开始,一个一个房间的进行测量,并且将测量的数据记录到平面图上,而如果有出入的地方就可以用不同颜色的笔标注出来。

  3、数据记录

  在量房的时候,对于房屋的整体高度、长度、宽度,需要做到准确,应将卷尺紧贴地面或者墙面拐角进行测量,及时将房屋数据记录下来。

  而在测量两个房屋之间的连接处时,需要在了解房屋的空间结构关系之后进行测量,并且两者之间的连接处是否有窗户、门、水电管道以及开关、插座等都需要记录下来。

  4、水电管道

  在厨卫之中的测量,不仅需要注意厨卫的面积,更需要注意的是厨房之中的水电管道,因为在装修的时候必然会对房屋水电管道进行改造,但是改造也是基于原有的水电管道之上的。

  厨卫最为家庭装修最为重要的一个区域,其水电管道最为密集,对这部分的测量,需要物业提供水电线路图,配合测量时对插座、开关的测量数据,才能做出最为准确的测量。

  怎么量房——一些量房的细节

  (1)利用卷尺量出房间的长度、高度(长度要紧贴地面测量,高度要紧贴墙体拐角处测量)。

  (2)对通向另一个房间的具体尺寸进行再测量和记录(了解两个房间之间的空间结构关系)。

  (3)观察四面墙体,如果有门、窗、开关、插座、管子等,在纸上简单示意。

  (4)测量门本身的长、宽、高,再测量这个门与所属墙体的左、右间隔尺寸,测量门与天花板的间隔尺寸。

  (5)测量窗本身的长、宽、高,再测量这个窗与所属墙体的左、右间隔尺寸,测量窗与天花的间隔尺寸。

  (6)按照门窗的测量方式把开关、插座、管子的尺寸进行记录(厨房、卫生间要特别地注意)。

  (7)要注意每个房间天花板上的横梁尺寸以及固定的位置。

  (8)按照上述方法,把房屋内所有的房间测量一遍。如果是多层的,为了避免橱测,测量的顺序为一层测曼完后再测量另外一层,而且房间的顺序要从左到右。

  (9)有特殊之处用不同颜色的笔标示清楚。

  (10)在全部测量完后,再全面检查一遍,以确保测量的准确和精细。

  怎么量房——量房过程中业主跟设计师聊些什么

  1.听

  听业主自己对新家的构想、家里有几口人、有什么特殊要求、比较偏爱哪种风格、墙壁可不可以改动……等等。

  2.聊

  最先要做的是,轻松愉快的第一交谈印象,破除陌生感和距离感。然后了解业主的工作性质、平时的兴趣爱好审美情趣、对房屋装修的理解。这样可以综合判断业主喜好的整体风格,方便设计师心中构思。

  3.谈自己看法

  比如自己在实地勘察后对业主房屋的理解、特定区域的装修建议,获取业主的认可,之后给出合理报价。

  4.做方案

  业主认可设计师的提议和报价后,便进入设计方案阶段。设计方案包括风格定位、材料推荐、尺寸限定、各部位施工工艺要求,各处细节的需求和要求,都要一一落在纸上,签入合同。

  5.主材沟通

  确定方案后,有些主材业主准备自己购买的,也需要结合设计方案,提前和设计师进行沟通后再做决定,以免材料不符合设计。

  怎么量房——免费量房需要注意什么

  通常,装修都是按照交定金、免费量房、免费设计、预算报价、签合同的流程进行的。但为了吸引业主“交定金”,一些装修公司会提出免费量房,这可以说有很大的诱惑。

  但是,等各项测量结果都出来了,业主也大致叙述了自己对家的设想。随后提起什么时候可以看到设计图时,则会要求业主先交定金,签合同时定金可冲抵装修工程款,不满意可以退回定金。

  而且,很多公司都是会在量房之前要求缴纳一定的定金,并口头承诺如果达不成协议会退还,但是,如果业主最终没有选择这家装修公司,仍然会被扣除一部分费用,也就是说,量房的费用其实已经变相跟你收取了。

  业主认为,实地量房是设计的必经之路,但是看不到满意的设计效果图,就要为量房埋单,让很多业主难以接受。一些业主打算自己量房,但施工队不答应,因为担心业主测量出来的数据不够准确,让人陷入两难。

  上半部分给大家介绍了“怎么量房”的相关内容,下半部分我们就进步设计环节:

  装修怎么设计——要不要找设计师来设计

  对于这种问题,是很多业主装修开始纠结的第一步,与其说是在“要不要选择设计师”这种问题上纠结,还不如说是在纠结选择了设计师能体现什么样的价值、不知道设计师能为自己提供什么、不知道怎么选择靠谱的设计师。

  前几天有个朋友友微信联系我,说有一套三层小复式户型的房子很纠结在怎么装,如果没找到满意的设计师,准备把房子卖掉。因为房子结构比普通住宅公寓更复杂,并且有局部异形。如果没有找到一位优秀的设计师来设计,能想象到基本u 会太出彩,并且他需要能实现非常前卫的效果。

  像这种一开始就需求就比较明确的业主,在选择设计师的时候会有基本的方向。重要的是那些既没有装修经验,也没有明确需求的业主,没准儿会从一开始就犯糊涂。

  装修怎么设计——为什么要找设计师

  对于施工单位尤其是家装的施工单位而言,一套住宅的装修只是一个月里面十几套甚至上百套待装修工程的一部分,而对业主而言,这是一件决定十几、二十几年甚至更长一段时间内自身居住环境的大事。二者在身份上的差别使得装修成为一项需要靠运气和性子的活动。

  越来越多的业主选择在装修过程中寻求独立的设计师把控设计,而不是被施工方牵着鼻子前进,一来独立设计师只做设计,追求的是设计的成果而不是施工的快捷和省材的窍门,更容易听取业主的意见,设计出他们满意的作品,另一方面,独立设计师在整个项目开始直到竣工验收结束,带给业主的是物超所值的服务——(PS:这里有个小前提,这是个好口碑、负责人的设计师)。

  请一个专业设计师,他的工作除了设计,还会从造价、软装、材料、插座、照明、施工等方面给你诸多建设性的意见,他在乎作品的完成度,而你得到自己想要的装修成果。

  造价

  一个合格的设计师在接到客户的设计需求之后,第一个问的是业主的装修预算,和装修公司讨论的一样,业主的预算决定了装修最终的效果,这是客观事实。但是不同的是,设计师综合装修预算和业主的需求后做出自己的设计判断,给业主提案及建议,力争在预算和最终效果上找到平衡点。

  举个例子,业主的预算不足以精装,但是希望达到现代、舒适的效果。设计师这边可能会给业主北欧风的提案,轻装修,重装饰,达到效果如下图所示:

  换成装修公司的装修套餐,业主的这笔预算将完全用于装修,例如这个级别不该有的大理石、石膏线、墙纸……。装饰部分业主只能另外掏钱,与他们无关,原因无它,这些所谓的豪华装修材料是其最大的利润来源。

  软装

  刚才提到的重装饰便是这个软装,它包括家具、窗帘、灯饰、地毯、挂画、花艺、绿植、饰品等。

  如果预算有限,装修没必要把过多的钱用在无用的高级材料上,大理石不会比瓷砖更适合适合这个级别的家用、低价的劣质壁纸只会让你的墙面效果适得其反。

  一名专业的设计师在软装方面会给业主诸多专业的建议,或者在效果图阶段便考虑如何通过软装的搭配实现装饰效果的升华。

  软装中的家具是日常生活中业主最常接触的东西。针对固定家具,例如衣柜、酒柜、鞋柜等,全屋有许多关于实用性和适用性的人体工程学知识,一名合格的设计师需要了解家具的人体工程学尺寸,并充分听取业主的需求后分析给出规划建议,或者直接出图设计(依据业主与设之间的合同内容).

  .......这篇幅的内容较长,只选取了一段显示,详细点击链接“装修为什么要找设计师”。

  装修怎么设计——请设计师单独设计要多少钱

  果仅仅是设计了结构施工图,那么多层框架设计费用是0.8元一平米,高层框架设计费用是1.2元一平米。但如果是设计效果图,那就要另外收费了。普通的A2大小的效果图是600元一张,360度的全景效果图要1500元一张。

  不同类型的房屋,其每平米的设计费是不一样的。单层住宅的设计费是40元一平,还附送一张效果图;复式住宅的设计费是50元一平;别墅的设计费是60元一平;大户型的设计费是80元一平;此外,首席设计师的收费要相对高一些,大概是180元一平。

  装修怎么设计——各个空间合适尺寸的设计【ps:下文的这些尺寸设计仅仅是一些建议,大家实际装修的时候还得看实际尺寸来弄,合适你家,才可选用】

  一、玄关

  玄关柜的挂衣杆不要高于170厘米,中间放置包包、钥匙等杂物的高度一般在90厘米左右,这样拿取方便。换鞋凳高度不要太高,要弯腰穿鞋舒适为宜,一般不超过40厘米高度。

  一、客厅

  1、客厅活动空间

  2、沙发的尺寸大小要根据客厅大小来定

  3、电视高度

  以坐下后正对着电视的视觉中心来计算,不超过110厘米为佳。太高仰着脖子看会使脖子酸痛。

  4、家里的电视到底选择多大,和沙发与电视的距离有关。

  三、餐厅

  餐桌椅的摆放及大小,这决定着你坐着的舒适度。

  餐桌椅具体比例高度如下,这样吃饭才比较舒适:

  四、厨房

  准备区:

  (台面高度+身高)/2+50mm,这样就不需要把腰弯很低去切菜。

  清洗区:

  清洗区和准备区的台面高度是一样的,要是家里买了洗碗机,那清洗区的高度就和洗碗机的高度平齐。

  烹饪区:

  烹饪区主要有烟机灶具,我们需要考虑到炒菜时炒锅的高度,所以 烹饪区的台面高度要低于清洗区,这样胳膊不用抬太高。

  收纳柜:

  五、卧室

  1、活动区域:

  过人的通道宽度不能低于300mm,床和衣柜之间的距离保持在600mm,梳妆台预留900mm的空间。

  2、床的大小

  3、梳妆台的大小

  4、衣柜标准设计隔板高度:

  六、卫生间

  卫浴空间的活动间距,避免各个使用空间受到影响。

  卫浴间的尺寸安装高度:

  装修怎么设计——设计师都设计什么些内容

  空间的分割和区域的划分:这是家庭装修设计中非常重要的方面,对那些布局不合理及可以自由分割的住宅进行合理的区域划分和空间分割尤为重要。起居室、卧室、厨房等房间只有空间分配合理,住起来才能方便。而且各房间的功能确定以后,才能按照各自的特点进行具体的设计。

  整体风格的设计。要确定整套住宅的风格到底是什么。常见的装修风格主要有中式、欧式、日式,古典、现代、浪漫之分。选择什么风格,无疑对装修的整体效果有着至关重要的影响。整体风格主要通过对一些艺术造型的设计来表现。

  实用功能的设计:如厨房需要设计出各种炊具、橱柜及冰箱的摆设和布局,从而使厨房使用起来得心应手。其他各房间也都应根据实际需要进行设计,以满足各自的功能需求。

  家具的设计:家具的造型与摆放的位置,对装修效果的影响也很大,因为它们的体积通常比较大;同时家具也具有实用功能,必须符合人体工程学原理,如设计不合理,使用时就会不方便。装修中自己做家具,可以充分地利用空间,还可以与整体风格融为一体。如果打算装修后买成品家具,也应在设计时事先考虑好家具的造型与色彩,以免破坏房间的整体风格。

  色彩与灯光的设计:色彩设计得当,能使居室富有特色,别有韵味。不同的色调,会给人不同的感觉;如果设计不当,可能会造成 视觉上的不和谐,给人不舒服的感觉灯光除了照明的使用功能外,更兼有装饰的作用。光线明暗的变化、色彩的变化,可以使家居装饰重点突出,富有个性。

  材料的设计。运用什么材料,是家居设计中不可缺少的一个方面。因为材料的质地、档次可以决定装修的效果和品位。 没有到不来的家装盛会,请搜索此公众号:dyrs_km来了解。

  后期软装配饰:窗帘、沙发、家具、灯具等后期配饰,一般都是在装修基本结束后才开始添置的。但是由于它们所占的面积或空间比较大,又往往带有图案和色彩,因此必须在设计时予以充分考虑,否则很容易破坏装修的整体效果。

  空间形象设计:就是对建筑所提供的内部空间进行处理,对建筑所界定的内部空间进行二次处理,并以现有空间尺度为基础重新进行划定。在不违反基本原则和人体工学原则之下,重新阐释尺度和比例关系,并更好地对改造后空间的统一、对比和面线体的衔接问题予以解决。

  室内装修设计,主要是对建筑内部空间的六大界面,按照一定的设计要求,进行二次处理,也就是对通常所说的天花、墙面、地面的处理,以及分割空间的实体、半实体等内部界面的处理。在条件允许的情况下也可以对建筑界面本身进行处理。

  室内物理环境设计

  :这部分内容主要是对室内空间环境的质量以及调节的设计,主要是室内体感气候:采暖、通风、温度调节等方面的设计处理,是现代设计中极为重要的方面,也是体现设计的“以人为本”思想的组成部分。随着时代发展,人工环境人性化的设计和营造就成为了衡量室内环境质量的标准。没有到不来的家装盛会,请搜索此公众号:dyrs_km来了解。

  室内设计完整的方案包括

  :水路图、电路图(强电、弱电、插座、灯具开关和灯具线路)平面布置图、地面布置图(地砖或地板的铺装)吊顶布置图,各个造型的立面图,施工工艺大样图、剖面图、效果图、设计说明、材料分析、预算书。

  方案的内容主要包括

  :家装设计思路和风格、主要材料选择、工程预算和施工工期、成本控制方法、质量控制方法、为您服务的人员名单、特殊情况提示等。

  室内设计就是从建筑物内部掌握空间,并根据空间的使用性质和所处环境,运用物质技术以及艺术手段,创造出功能公道,恬静美观,符合人们生理、心理要求,使人心情痛快,便于工作、生活、学习的理想场所的内部空间环境设计。

  装修怎么设计——怎么读懂设计图

  一、了解装修设计图

  在设计师交给我们的图纸当中,主要是有两种类型的图,一种是装修效果图,还有一种就是装修设计图了,效果图比较好看,这里我们就不在介绍,今天我们主要介绍的就是装修设计图。装修是设计图包括平面图和立面图,下面我们就对这两种图做一下简单的介绍。

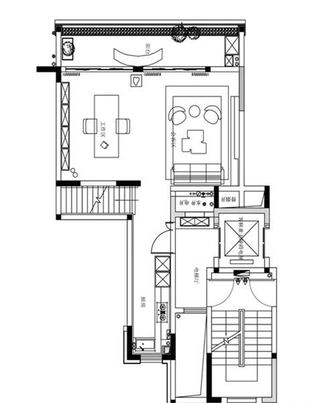
  1、平面图

  在装修的平面图分类中,其又可以分为地面平面图和顶面平面图。地面平面图是反映整个住宅的总体布局的,从图中,我们能够看到房屋居室的划分和各个空间的家具摆放。本文插入的第一张图片就是地面平面图。还有就是顶面平面图,顶面平面图主要是反映天花的造型以及灯具的数量、位置等。地面平面图是俯视图,顶面平面图是仰视图。这两种图和我们平常看东西的视角有点不一样,因此有的人看起来比较吃力。无论是看地面平面图还是顶面平面图,我们都需要把握以下的几个原则。

  (1)看空间的划分是不是合理。在看平面图的时候,我们首先要根据平面图看看其空间的划分是不是合理。首先,我们需要找出墙体部分(平面图中,墙体部分都由加粗的两根线条表示),然后根据墙体确定各个居室的位置,然后把图中的位置与我们房屋实际的位置进行对比,如果平面图中所标识的位置与实际的情况不符,那就证明这个部分进行了改动,对于空间进行了重新划分,这时候我们就要审查这种对于空间的改动是不是合理。

  (2)看家具、设施的安放是不是恰当。完整的平面设计图是包括家具的摆放位置的,家具在平面图中虽然没有统一的标识,但是我们还是能够一眼看出来的。在看懂哪些是家具之后,我们就要弄清楚其摆放位置和方向,然后审视其安排是不是得当。

  2、立面图

  立面图相比平面图要容易看许多,立面图是反映居室墙面造型的图片。由于立面图的视角和我们平时看墙面的视角是一致的,因此非常容易看懂。比如,上图中的图片就是一套别墅的客餐厅两面墙的立面图。其中图片的上半部分是电视背景墙所属墙面的立面图,下半部分是沙发背景墙所属墙面的立面图。这里看立面图的时候需要提醒一下,不要把墙看错就行了,比如把电视背景墙的立面图看成沙发背景墙的立面图,如果我们不会看错,那么看立面图就不会出太大的问题了。

  二、如何看设计图

  在第一部分我们主要介绍了设计图的类型以及简单的介绍了如何看设计图,下面我们对怎么看装修设计图做个专门的介绍,这里我们提供两种看装修设计图的方法,一种是专业的视角,一种是大众的视角。

  1、专业的视角怎么看

  (1)设计风格是不是统一,设计的造型是不是与设计风格相符。比如在简约风格的居室中,采用了大量的欧式曲线,这造型明显是不合适的。

  (2)房屋的布局是不是合理,房屋的动线设置是不是合理。

  (3)采光是不是合理,有没有自然采光。

  (4)照明的设置是不是合理,能不能满足照明的需要。

  (5)设计的预算是多少,有没有超出预算太多。

  (6)现有的施工技术能不能满足设计的需要。

  2、从大众的角度看

  (1)设计图是不是真实。在现实生活中,许多设计师在画效果图的时候为了满足图片美观度的需要,会故意的调整尺寸,从而发生效果图一个样,实际装修效果图另一个样的现象。因此,首先我们要看设计师是不是故意调整了房屋中家具或者是其它部分的尺寸。

  (2)看色彩。看色彩是不是顺眼,如果设计图中的色彩看起来都不顺眼,那么装修之后一定别扭。

  (3)是不是满足自己实际的需要。比如,你想要有柜子的地方没有柜子,你感觉不必要的地方,确多了一个柜子,这种满足不了自己实际需要的设计怎么能合格。

  今天主要介绍怎么量房与怎么设计两大块的东西,涉及到的多个方面的东西,所以文章略长,大家见谅,但里面都是大家测量设计的时候比较关心的东西,所以还是请大家话点时间看完。下期我们还是继续来看看测量设计这方面的内容,但是重心将会放在装修价格与如何省钱这两块。如果你需要了解这方面的内容的话,尽情关注装修保障网。

  “家居装修预算&省钱”已经上线出炉:家居装修预算&省钱一把抓 要想做好全靠它?点击红字急速预览。

上一篇:卫浴收纳:看日本人的家怎么处理?神清气爽
下一篇:新房装修你们还在用老式插座吗 现在都流行这种插座了